LOGO

Galéria

Kapcsolat

+ 36 (70) 361 24 23

interior@ungeragnes.hu

Social

Alaprajz optimalizálás csomag

alaprajz elemzés

funkcionálisan jól működő alaprajzi variációk maximális helykihasználással,
a lakás adottságai, a személyes életvitel- és igények figyelembevételével

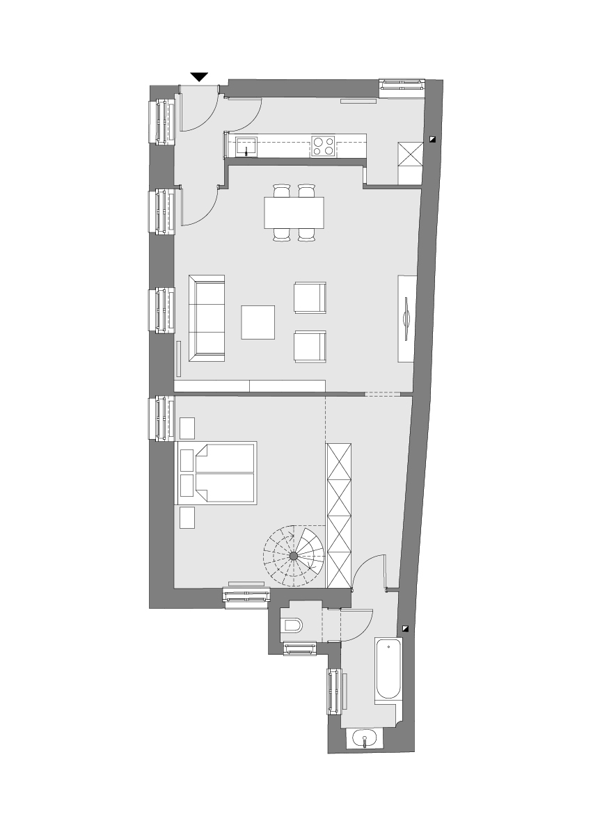
ELŐTTE
80 m2
2 szobás lakás
1 fürdős lakás

– 1 háló kettő helyett
– 1 fürdő rossz helyen
– szűk étkezős konyha
– vendégmosdó hiánya
– kihasználatlan holt terek
– túl sok közlekedő tér

amit nyerhet

az átalakítással

2 háló egy helyett
2 fürdő praktikus helyen
amerikai konyha
– vendégmosdó
– nincs kihasználatlan holt tér
– minimális közlekedő tér
– előszobai tárolóhely
– beépített mosó/szárítógép
– sok tároló kapacitás
– cirkó szekrénybe rejtve

UTÁNA
80 m2
3 szobás lakás
2 fürdős lakás

építész szaktudás

belsőépítész szemlélettel

50 m2-ig
220.000 Ft
120 m2-ig
260.000 Ft
120 m2 felett
300.000 Ft-tól

a csomag tartalma

  • Egy alkalmas helyszíni kiszállás
  • Az épület felmérése, alaprajz készítése a pontos méretek alapján a meglévő állapotról M=1:50 léptékben
  • Szükséges számú alaprajzi elrendezés koncepció terv szintű kidolgozással, az igények- és funkcionális szempontok figyelembevételével. (Max. 5 variáció)
  • A kiválasztott alaprajzi elrendezés alapján bútorozási alaprajz M=1:50 – javaslat a bútorozási elrendezésre
  • Szakember ajánlás a szükséges szakipari munkákra
  • Opció – Kapcsolási és világítási alaprajz – ár egyedi ajánlat alapján. Kapcsolási és világítási alaprajz készítése a lámpatestek és elektromos kiállások pontos jelölésével.

Telefon

+36 (70) 361 24 23

Email

interior@ungeragnes.hu

Kapcsolat

Amennyiben kérdése merült fel az oldalon látott tartalommal kapcsolatban, írjon üzenetet.